三相電表分為三相三線電表和三相四線電表,三相電表安裝圖一般在電表的說明書里面都有的,“浩寧科技”為您收集了三相電表安裝圖,希望對您有所幫助。
以威勝DTSD341型號為例,以下是安裝尺寸和接線圖,當然不同品牌不同型號的電表安裝尺寸是有差別的,如果您需要其他電表的安裝圖,您可以聯系我們,我們將為您解決問題。“浩寧科技”是各大品牌電表的代理商!
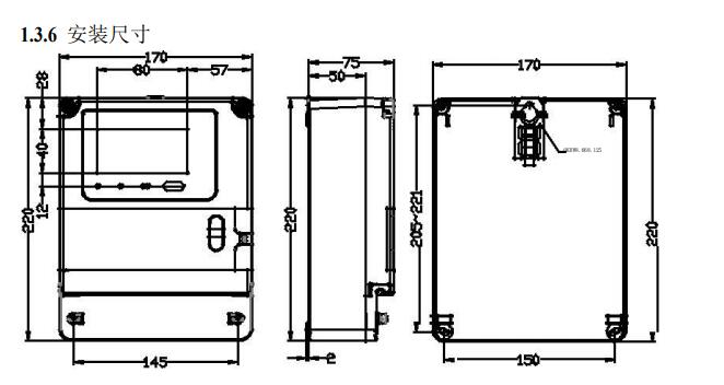
威勝DTSD341安裝尺寸

威勝DTSD341主端子接線圖

其中1、4、7接電流互感器二次側S1端,即電流進線端;
3、6、9接電流互感器二次側S2端,即電流出線端;
2、5、8分別接三相電源;
10、11是接零端。為了安全,應將電流互感器S2端連接后接地。注意的是各電流互感器的電流測量取樣必須與其電壓取樣保持同相,即1、2、3為一組;4、5、6 為一組;7、8、9 為一組。下面是詳細操作。
A黃線,電壓線接入2號口,電流線經過第1個電流互感器S1接入1號口輸入,S2接入3號口輸出
B綠線,電壓線接入5號口,電流線經過第2個電流互感器S1接入4號口輸入,S2接入6號口輸出
C紅線,電壓線接入8號口,電流線經過第3個電流互感器S1接入7號口輸入,S2接入9號口輸出
N黑線一般代表零線,直接接入10號口。
本文地址:http://www.cn-huanxin.com/xinwenzhongxin/zhishi/4013.html
